![]() |
|
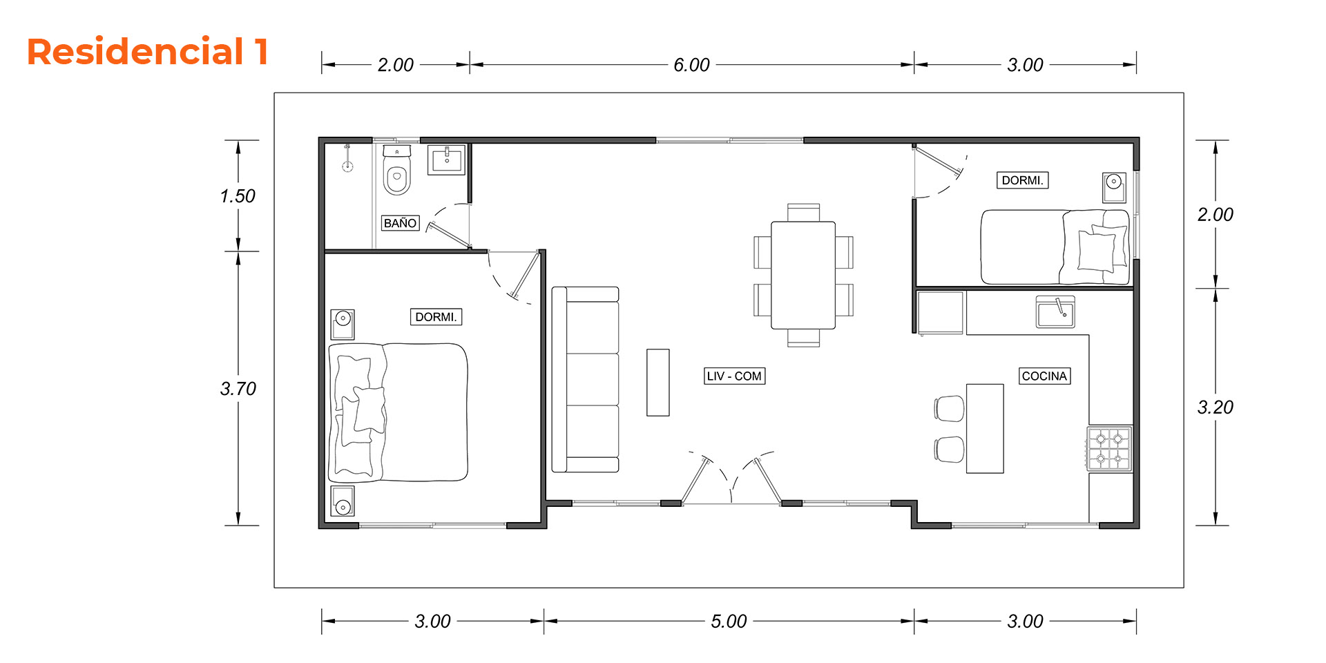
MODELO RESIDENCIAL 1 y 2 |
Las imágenes mostradas son ilustrativas.
CONTADO DE LISTA:
$27.378.423
CONTADO OFERTA:
$25.385.274
(en un solo pago)
Adicional por instalación en terraza 10%
Resiencial 1
Residencial 2
CUBIERTA DE TECHO: Chapa galvanizada Cal.27 Natural acanalada.
PANELES EXTERIORES: Revestidos con placas cementicias aptas para
cualquier tipo de revestimiento o terminación.
AISLANTES: Espuma de polietileno aluminizado de 10mm en todas
las paredes perimetrales y cielorraso.
CIELORRASO: Revestido en placas de roca de yeso.
PANELES INTERIORES: Revestidos en placa de roca de yeso, tanto
en las perimetrales como en las divisiones de los ambientes.
VENTANAS: En aluminio blanco corredizas a dos hojas con vidrios y
burletes con tapa premarcos (Premiun).
PUERTAS: Puerta de entrada doble chapa reforzada.
Puertas interiores placas de 0.70 x 2.00 mts.
INSTALACIÓN ELÉCTRICA: Se preinstalará dentro de los
paneles el circuito compuesto por los caños conductores de
los cables y las respectivas cajas para interruptores y
tomas de luz sin cables ni accesorios.
INCLUYE
REALIZACIÓN DE BASE/CONTRAPISO
DESAGÜES, INSTALACIÓN DE AGUA FRÍA Y CALIENTE CON
SISTEMA TERMOFUSION EN COCINA Y BAÑO Y UNA SALIDA PARA
EL TERMOTANQUE.
LOS MISMOS CORRESPONDEN A LA MANO DER OBRA A CARGO DE LA
EMPRESA VENDEDORA, LOS MATERIALES A CARGO DEL CLIENTE
COMPRADOR.
LA PROMOCIÓN ES VALIDA HASTA 70 KM DEL PUNTO DE VENTA.
FLETE Y ARMADO SIN CARGO HASTA LA MISMA DISTANCIA.
Av. Intendente Jorge R. Varela 1103
(Ex av. Rivadavia).
Teléfono: 03489-468877
Teléfono: 03489-427072