![]() |
|
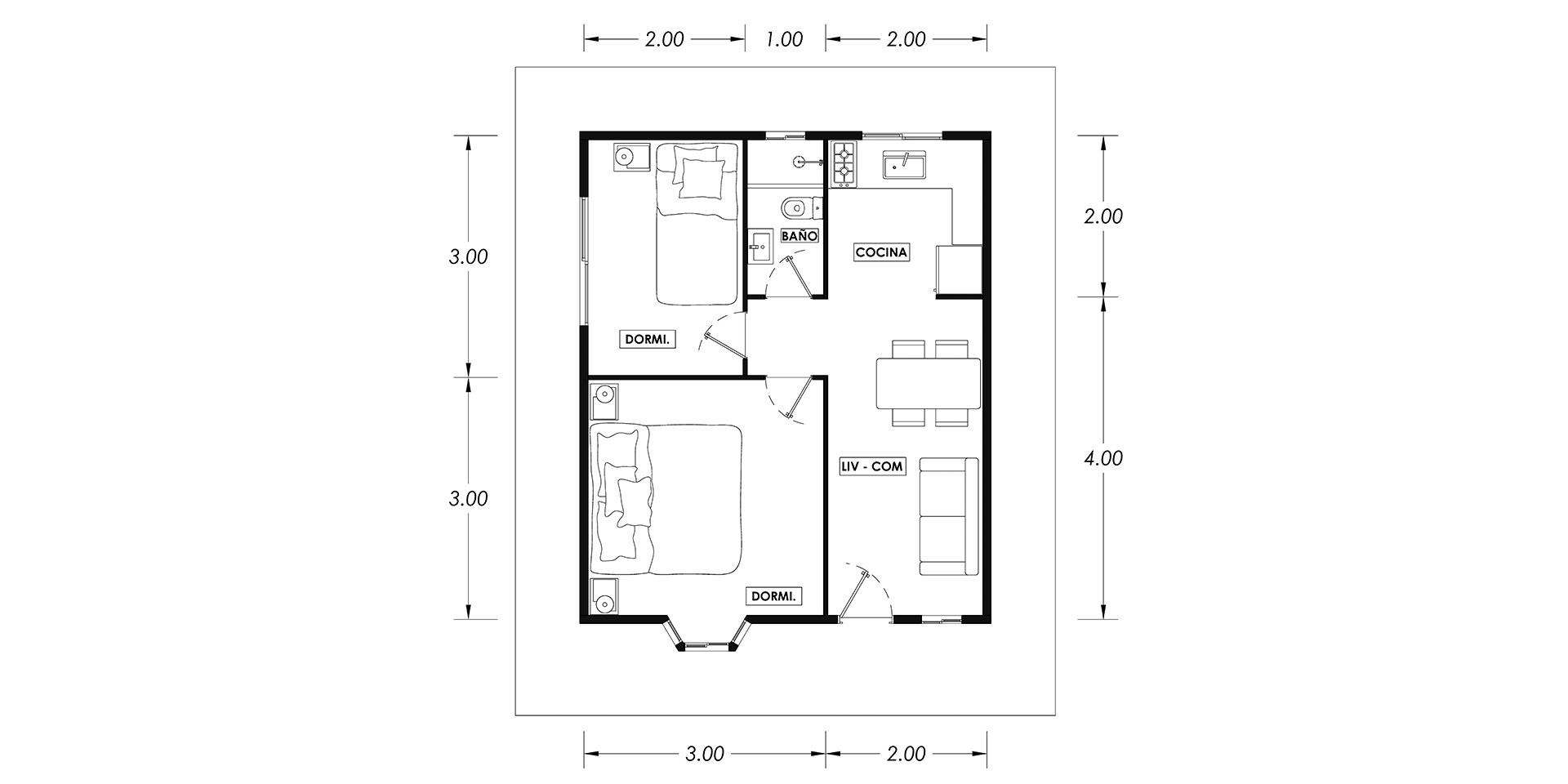
CABAÑA FRENTE INGLES |
CONTADO DE
LISTA:
$1.362.400
CONTADO OFERTA:
$1.294.300
(en un solo pago)
Anticipo $817.4500
y 36 cuotas de
$34.160
TECHO : Chapa acanalada cal 27 color natural
CIELORRASO : En placas de roca de yeso Durlock.
PAREDES INTERIORES : Revestidas tanto en las
perimetrales como en las divisiones de ambientes en placas
de roca de yeso Durlock.
PAREDES EXTERIORES : Revestidas en tablones SIDING
superpuestos estilo americano, con sus dos versiones a
elección ( liso o simil - madera ).
VENTANAS : Al frente estilo Bow - windows en
aluminio, en los demás ambientes ventanas planas corredizas
a dos hojas con vidrios y burletes colocados.
PUERTAS : Interiores placas de 0.70 x 2.00m con
marcos metálicos y al frente metálica.
INSTALACIÓN ELÉCTRICA : Se preinstalará dentro de los
paneles el circuito compuesto por los caños conductores de
los cables con sus respectivas cajas para interruptores y
tomas (sin cables ).
PANEL SANITARIO : Se preinstalará el panel sanitario
de cañerías en polipropileno fusionado para agua fría /
caliente en baño.
LAS IMÁGENES SON ILUSTRATIVAS
INCLUYE REALIZACIÓN DEL CONTRAPISO ( solo mano de obra ) VISITA TÉCNICA Y FLETE Y ARMADO SIN CARGO ( promo valida solo hasta 80 km ) .
Av. Intendente Jorge R. Varela 1103
(Ex av. Rivadavia).
Teléfono: 03489-468877
Teléfono: 03489-427072