Areco WF



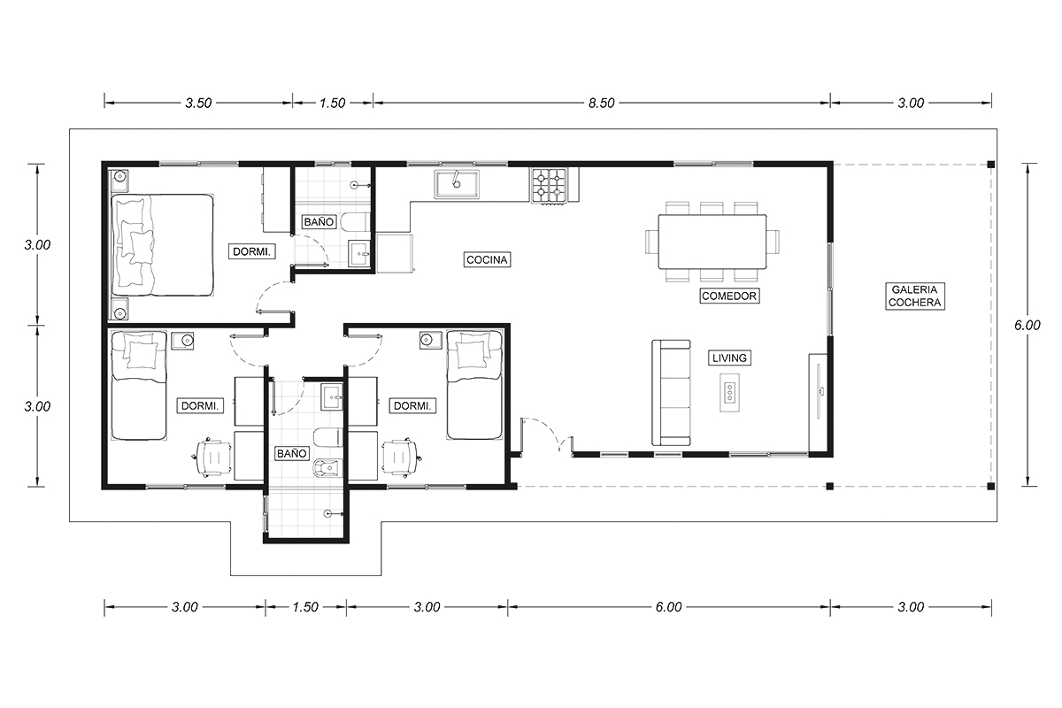
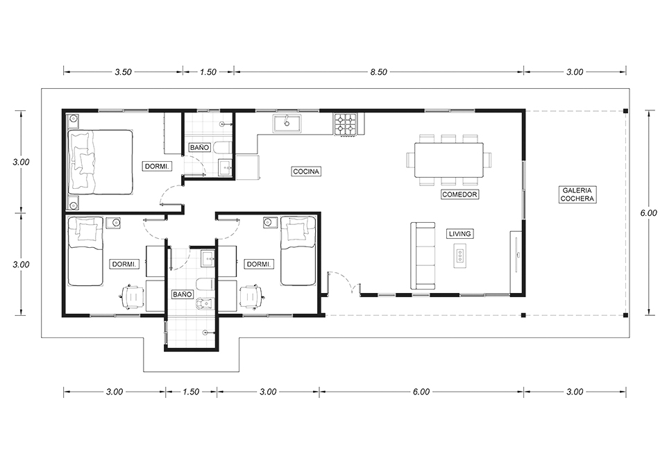
Las imágenes mostradas son ilustrativas.

Ficha Técnica

CUBIERTA DE TECHO: Chapa aluminizada Cal.25 Cincalum Natural. Con aislante térmico de espuma de polietileno aluminizado de 10mm.
ESTRUCTURA: Con tirantería de madera saligna de 3”x 1”.
PANELES EXTERIORES: Revestidos con placas cementicias Superboard aptas para cualquier tipo de revestimiento o terminación. Con colocación de placas OSB en paredes perimetrales.
AISLANTES: Lana de vidrio en todas las paredes perimetrales y cielorraso con barrera de viento y agua marca Wichi o similar.
CIELORRASO: Revestido en placas de roca de yeso.
PANELES INTERIORES: Revestidos en placa de roca de yeso de (Durlock) tanto en las perimetrales como en las divisiones de los ambientes. Con placas siliconadas antihumedad en cocina y baño.
VENTANAS: En aluminio blanco corredizas a dos hojas con vidrios y burletes. Línea Módena.
PUERTAS: Puerta de entrada inyectada de un punto y puertas interiores placas de cedro de 0.80 x 2.00mts.
PLATEA: (Mano de obra SIN materiales). Realizada con una altura de 10 cm. con nylon de 200 micrones y mallas de 5,5 milímetros.
INSTALACIÓN ELÉCTRICA: Se preinstalará dentro de los paneles el circuito compuesto por los caños conductores de los cables y las respectivas cajas para interruptores y tomas de luz. (Sin cables ni accesorios).
INSTALACIÓN DE PLOMERÍA: (Mano de obra SIN materiales). Instalación de agua fría y caliente con sistema de termo fusión en cocina, baño y una salida de termotanque. Colocación de caños de desagües en cocina y baño hasta el borde de la platea.

CONDICIONES DE ENTREGA: La entrega de la vivienda se realizará dentro de los 90 días hábiles desde la realización de la platea.

IMPORTANTE:
Flete, armado y mano de obra de contrapiso e instalación de plomería incluidos hasta 70km desde el punto de venta.

Imágenes Ilustrativas

 

VIVIENDAS CAMPANA

Av. Intendente Jorge R. Varela 1103
(Ex Av. Rivadavia).